Skip to main content
PerryHomesLogo
$348,900
Wildtree 40'

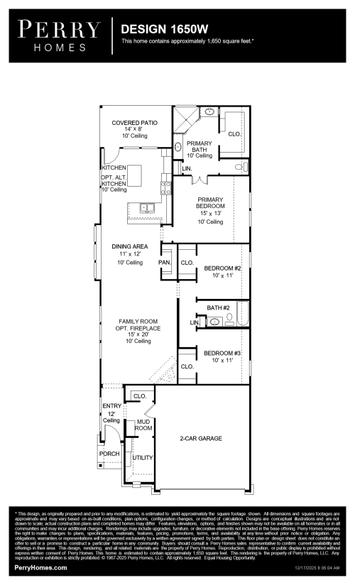
1650W

Available to Build

1,650 Sq. Ft.
3 Beds
1 Stories
2 Baths
2 Cars
0 Half Baths
Request More Information
Loading form...
Standard Features

Sales Center

Address:

4943 Pinestraw Valley Way

Magnolia, TX 77316

Hours:
  • Mon - Sat 10am - 6pm
  • Sun 12pm - 6pm

Floor Plan

Floor plan PDF poster

Representative Video Tour

Poster

Schools

Magnolia ISD
Audubon Elementary
Magnolia Intermediate Magnolia Junior High
Magnolia High School

Mortgage Calculator

$2,092

Estimated Monthly Principal and Interest

The monthly payment shown is an estimate of principal and interest only.
Taxes and insurance are not included in this estimate.

Builder reserves the right to make changes in the designs and specifications, and to substitute material of similar quality. Prices, terms, promotions, plans, dimensions, features, options, amenities, elevations, designs, square footages, specifications, materials and availability of homes or communities are subject to change without notice or obligation. All obligations will be governed by a written contract. This website does not constitute a commitment to build a particular design or home in any given community. Some designs, options, and/ or elevations may not be available on certain homesites or in a particular community and may require additional charges. Please check with Perry Homes to verify current offerings in the communities you are considering.